IPB

Здравствуйте, гость ( Вход | Регистрация )

4 Страницы V < 1 2 3 4 >  
Ответить в эту темуОткрыть новую тему
> В Красноярском крае произошло разрушение второго водовода на Саяно-Шушенской ГЭС
SuperMax
сообщение 18.8.2009, 6:40
Сообщение #41


Администратор
*****

Группа: Root Admin
Сообщений: 6 346
Регистрация: 7.1.2006
Из: Красноярск
Пользователь №: 1



Цитата
Сообщение от ПринцIP С накабы цитата:
Цитата с сайта Русгидро:

Приточность реки Енисей в 2009 году превышает среднемноголетние значения на 10 процентов, в связи с этим с апреля гидроэлектростанция работает с повышенной нагрузкой.
В июне- июле суточная выработка электроэнергии достигала 105 млн. кВтч - это МАКСИМАЛЬНАЯ суточная выработка за весь тридцатилетний период эксплуатации Саяно-Шушенской ГЭС.
Прогнозные данные по приточности на август-сентябрь также на 10 процентов выше средних значений, поэтому в августе и сентябре Саяно-Шушенская ГЭС также будет работать с максимально возможной нагрузкой.

http://www.sshges.rushydro.ru/press/news/7508.html

Тоесть ГЭС давала абсолютно рекордное количество электроэнергии за все время своего сущестования даже насмотря на то, что одна из турбин была остановлена для ремонта Таки наводит на определенные размышления. К чему были эти рекорды на и так не вполне "здоровой" ГЭС...
Сдается мне, что у пресловутого "гидроудара" именно из этого места "ноги растут" ...

вот так то...


--------------------
Живы будем - Не помрем !
Пользователь в офлайнеКарточка пользователяОтправить личное сообщение
Вернуться в начало страницы
+Ответить с цитированием данного сообщения
SuperMax
сообщение 18.8.2009, 6:45
Сообщение #42


Администратор
*****

Группа: Root Admin
Сообщений: 6 346
Регистрация: 7.1.2006
Из: Красноярск
Пользователь №: 1



http://4044415.livejournal.com/51285.html
http://4044415.livejournal.com/51685.html


Эскизы прикрепленных изображений
Прикрепленное изображение

--------------------
Живы будем - Не помрем !
Пользователь в офлайнеКарточка пользователяОтправить личное сообщение
Вернуться в начало страницы
+Ответить с цитированием данного сообщения
SuperMax
сообщение 18.8.2009, 6:47
Сообщение #43


Администратор
*****

Группа: Root Admin
Сообщений: 6 346
Регистрация: 7.1.2006
Из: Красноярск
Пользователь №: 1



еще


Эскизы прикрепленных изображений
Прикрепленное изображение Прикрепленное изображение Прикрепленное изображение Прикрепленное изображение Прикрепленное изображение

--------------------
Живы будем - Не помрем !
Пользователь в офлайнеКарточка пользователяОтправить личное сообщение
Вернуться в начало страницы
+Ответить с цитированием данного сообщения
SuperMax
сообщение 18.8.2009, 6:53
Сообщение #44


Администратор
*****

Группа: Root Admin
Сообщений: 6 346
Регистрация: 7.1.2006
Из: Красноярск
Пользователь №: 1



Для тех, кто слабо представляет себе то железо, которое летало по машзалу.

Прикрепленное изображение

Прикрепленное изображение

Прикрепленное изображение

Прикрепленное изображение

Прикрепленное изображение

Прикрепленное изображение


--------------------
Живы будем - Не помрем !
Пользователь в офлайнеКарточка пользователяОтправить личное сообщение
Вернуться в начало страницы
+Ответить с цитированием данного сообщения
SuperMax
сообщение 18.8.2009, 6:57
Сообщение #45


Администратор
*****

Группа: Root Admin
Сообщений: 6 346
Регистрация: 7.1.2006
Из: Красноярск
Пользователь №: 1



Цитата
Однако, есть все же такое мнение (взято отсюда http://rukhakasia.livejournal.com/):
Мне рассказал парень который там работает, он сам не успел спустится на лифте вниз, где все бытовки, а парни которые спустились их так больше никто и не видел, рассказал вот что, что второй агрегат вообще стоял на ремонте и кто-то по ошибке случайно открыл затвор и вода пошла в него, вырвала ротор весом 980 тонн, который пробил крышу и все там затопило, кто был наверху рядом погибли сразу, а бытовки турбинного цеха находятся внизу ниже уровня воды и люди которые там были, по моим данным 68 человек, так и остались под водой, водолазы спасли одного парня через 6 часов, который находился внизу в воздушном мешке. У меня там погибло два друга.


--------------------
Живы будем - Не помрем !
Пользователь в офлайнеКарточка пользователяОтправить личное сообщение
Вернуться в начало страницы
+Ответить с цитированием данного сообщения
SuperMax
сообщение 18.8.2009, 7:08
Сообщение #46


Администратор
*****

Группа: Root Admin
Сообщений: 6 346
Регистрация: 7.1.2006
Из: Красноярск
Пользователь №: 1



Момент аварии
видео




Прикрепленные файлы
Прикрепленный файл  avaia.avi ( 2.89 мегабайт ) Кол-во скачиваний: 9257


--------------------
Живы будем - Не помрем !
Пользователь в офлайнеКарточка пользователяОтправить личное сообщение
Вернуться в начало страницы
+Ответить с цитированием данного сообщения
SuperMax
сообщение 18.8.2009, 10:50
Сообщение #47


Администратор
*****

Группа: Root Admin
Сообщений: 6 346
Регистрация: 7.1.2006
Из: Красноярск
Пользователь №: 1



Цитата
Сообщение от Cruisermax Не стал писать пока не прочитал все новое что написали со вчерашнего вечера. Отвечу на некоторые вопросы:
1) Рабочие колеса (турбины) на Богучанскую ГЭС изготавливаются на Силовых машинах. Санкт Петербург. Это к теме о том что Россия еще может изготавливать подобное и является кстати практически лидеров в данной категории.
2) На водоводах в обязательном порядке ставятся сороудерживающие решетки! Так что никаких топлякогв или иного мусора попасть туда не может
3) Попали камни? Господа откуда плавающие камни в воде когда до дна (где они могли лежать и лежат) до нижнего края приемной части водовода порядка 230 метров! а закинуть их туда если вы говорите про деверсию слишком уж сказочно..да и сороудерживающие решетки никуда никто не убирал!
4) К тому же топляк собирается в боновых заграждениях в верхем бьефе плотины
5) Про запуск Богучанки в течении 3-х лет. Да у нас пуск запланирован на следующий год..какие 3-года?
6) ну а по причинам трагедии, все таки сходимся (советовался с коллегами) на 2 вариантах. Первое: заслонка (байпас) - нерегулируемое наполнение водовода. Второе: короткая замыкание которое при трехфазной системе вызывает огромный ток и магнитные составляющие...на 2 агрегате. как раз магнитные составляющие и выкинули эту махину. Версия для многих несведущих покажется смешной, но был данный случай и на Красноярке..агрегат подпрыгнул на полметра.слава богу обошлось.


--------------------
Живы будем - Не помрем !
Пользователь в офлайнеКарточка пользователяОтправить личное сообщение
Вернуться в начало страницы
+Ответить с цитированием данного сообщения
SuperMax
сообщение 18.8.2009, 10:54
Сообщение #48


Администратор
*****

Группа: Root Admin
Сообщений: 6 346
Регистрация: 7.1.2006
Из: Красноярск
Пользователь №: 1



http://forums.drom.ru/hakasiya/t1151240353.html


--------------------
Живы будем - Не помрем !
Пользователь в офлайнеКарточка пользователяОтправить личное сообщение
Вернуться в начало страницы
+Ответить с цитированием данного сообщения
SuperMax
сообщение 18.8.2009, 11:00
Сообщение #49


Администратор
*****

Группа: Root Admin
Сообщений: 6 346
Регистрация: 7.1.2006
Из: Красноярск
Пользователь №: 1




http://www.government.ru/content/governmen.../17/1602442.htm

В.А. Зубакин:

Цитата:
Цитата
Если мы выясняем, что надежно закрыть затворы в нижнем бьефе не удается, мы немедленно приступаем к строительству перемычки, делая полную копию той строительной перемычки плотины, которая была в момент строительства станции.

Мы уже добыли документы 40-летней давности, в которых технология есть. На наше счастье, здесь развернуты серьезные строительные силы, поскольку здесь идет строительство дополнительного водосброса Саяно-Шушенской ГЭС.

Следующее. Мы хотим немедленно интенсифицировать работы по строительству дополнительного водосброса с тем, чтобы одна нитка из двух дополнительного водосброса была построена к весеннему паводку.
Поскольку до весеннего паводка мы точно станцию не восстановим, точно не будет серьезного расхода через агрегаты, нам нужно, кроме существующего аварийного водосброса, еще иметь дополнительные для того, чтобы не пропустить паводок. Если он будет - в масштабах потребует 6, 8, 10 или, может быть, 12 кубических метров в секунду.
---------------------------------------------------------------------------------------------------------

Кроме того, мы понимаем, что все разговоры о том, что Богучанская ГЭС не нужна, она лишняя в Сибири, необходимо немедленно прекратить. Мы вышли на контакт с нашим партнером, Олегом Владимировичем Дерипаской, и будем интенсифицировать строительство и пуск Богучанской ГЭС, чтобы восполнить то выпадение из ресурсов Сибири гидрогенерации.


--------------------
Живы будем - Не помрем !
Пользователь в офлайнеКарточка пользователяОтправить личное сообщение
Вернуться в начало страницы
+Ответить с цитированием данного сообщения
SuperMax
сообщение 18.8.2009, 11:01
Сообщение #50


Администратор
*****

Группа: Root Admin
Сообщений: 6 346
Регистрация: 7.1.2006
Из: Красноярск
Пользователь №: 1



Цитата
Сообщение от elec3 Доброго времени суток
Всем пострадавшим мои соболезнования
Я так понимаю, мы пока высказываем предположения, а дней через несколько кого ни будь из персонала ГЭС пропрет на инфу по делу
По-моему такое могло произойти только с разрушением лопаток турбины или их оси с ротором
В файлах архива асутп второй машины посмотреть, что из них стало первым разваливаться плюс осциллограммы низкой и высокой стороны
Ну и всю релейку просмотреть в файлах сервера архива асуп
А если этих редундантных (избыточный, резервный, дублирующий) систем (асу) нет то рао это дурилка плюшевая и мы все заложники
Нас технарей повыгоняли в 90г и заменили на тендерщиков сопливых после гарвордов вот и….
Не можем мы откаты давать как аввсименс и проч.
А боенги с шатлами и у них с подвесок вместе с бомбами падають


--------------------
Живы будем - Не помрем !
Пользователь в офлайнеКарточка пользователяОтправить личное сообщение
Вернуться в начало страницы
+Ответить с цитированием данного сообщения
SuperMax
сообщение 18.8.2009, 11:05
Сообщение #51


Администратор
*****

Группа: Root Admin
Сообщений: 6 346
Регистрация: 7.1.2006
Из: Красноярск
Пользователь №: 1



Цитата
"На Саяно-Шушенской ГЭС около 70 человек пропали без вести. Или 54. Или 68.
Причина катастрофы - взрыв масляного трансформатора. Или гидростатический удар.
На теракт не похоже?"
Очень похоже. Для тех, кто не знает: Железобетонная плотина является бомбоубежищем пятой категории. Выдерживает ядерный взрыв непосредственно над собой. Все бомбоубежища для персонала всегда создавались в теле плотины. Взрыв масляного трансформатора – маломощный. Ничего на ГЭС он разрушить не может. Гидрозатворы - слабое место ГЭС, расположены далеко от всего, что может взорваться. Взрыв трансформатора не может сорвать гидрозатвор.

Саяно-Шушенская авария:

"Сейчас вроде бы начинает чуть-чуть проясняться. Конечно, никакой не "взрыв трансформатора" и вообще не взрыв в машинном зале - характер разрушений был бы не таким. Вначале говорили о некоем "гидроударе". В каком-то смысле это действительно гидроудар. Почему-то поток воды пошёл по закрытому водоводу на турбины находящиеся в ремонте. Внизу, в районе турбин - давление больше 10 атмосфер, этoт канал должен быть очень плотно закрыт. Если полость около турбин открыта - из неё хлестнёт огромный фонтан, который именно так и снесёт крышу и весь зал как на картинках."
Почему эти водоводы оказались открыты - пока неизвестно. Либо фантастическое разгильдяйство, либо диверсия. С одной стороны - "просто август", с другой - сразу несколько странных совпадений - от теракта в Ингушетии до недошедшей до катастрофы аварии на братской ГЭС, почти одновременно с С-Ш.

Как бывший энергетик могу сказать что там могло быть. Был вынут на ремонт генератор и кто то, открыв затвор, подал воду в эту шахту. Вода через открытую шахту хлынула в машинный зал и все залила и разрушила.

Диверсия однозначно.

«Само открыться» категорически не могло.

Нажать кнопку случайно – тоже нельзя. Там слишком много блокировок. Нужны сложные согласованные манипуляции нескольких людей.

Если же эти блокировки не были поставлены, то это само по себе уже диверсия. В которой замешано несколько руководителей. Как те, что давали (не давали) распоряжения на вывод в ремонт агрегата, так и те, кто давал разрешения на манипуляции.


--------------------
Живы будем - Не помрем !
Пользователь в офлайнеКарточка пользователяОтправить личное сообщение
Вернуться в начало страницы
+Ответить с цитированием данного сообщения
SuperMax
сообщение 18.8.2009, 11:08
Сообщение #52


Администратор
*****

Группа: Root Admin
Сообщений: 6 346
Регистрация: 7.1.2006
Из: Красноярск
Пользователь №: 1



Цитата
В Сургуте на ГРЭС в том году крыша обвалилась... не так давно сократили антиобледенительную службу - экономия. на эти деньги сделали ремонт в офисах, а когда льда на крыше накопилось больше 80 см она и не выдержала... полностью вывалился пролет крыши... чудом никто не пострадал...

... по офиц данным ни слова про лед...


--------------------
Живы будем - Не помрем !
Пользователь в офлайнеКарточка пользователяОтправить личное сообщение
Вернуться в начало страницы
+Ответить с цитированием данного сообщения
SuperMax
сообщение 19.8.2009, 7:39
Сообщение #53


Администратор
*****

Группа: Root Admin
Сообщений: 6 346
Регистрация: 7.1.2006
Из: Красноярск
Пользователь №: 1



http://drugoi.livejournal.com/3021464.html#cutid1
хорошая подборка фоток

итого 2й агрегат - разрушен полностью включая перекрытия
судя по расположению - "он взлетел" вследствии гидроудара или еще чего

7й - разрушен полностью включая перекрытия(!)
по фоткам видно что он ушел в разнос
автоматика залитая водой не конролировала ни обороты ни подачу масла в пошипники. их заклинило и вырвало крепления

9й - принцип разрушения тотже но перекрытия на месте

с 5ого по 3й завалены обломками перекрытий

вся автоматика в зале включая маслонасосы повреждена на 100%

по факту надо вздернуть проектировщиков по милости которых все (!) турбины оказались в одном зале
те не попади вода в зал и не повреди автоматику управления оставшимися - они были бы целы..... не говоря о значительно меньших человеческих жертвах!

сейчас я думаю встанет вопрос о защите всей автоматики и переносе ее в более защищенное место. а это изменение проекта - те огромное время.

вообще глядя на все это можно оценить сроки восстановления
1. если до конца года запустят хоть одну турбину то это будет отличный результат
для этого надо не только разобрать все завалы, построить новые перекрытия
но и провести исследование состояния бетонного основания машзала
те выдержит ли он вообще ?
ибо сломаные перекрытия - скрытые дефекты
/не исключаю возможности принятя решения о капремонта машзала - те его будут перестраивать/

2. аналогично, можно считать запуск половины от всех турбин через 2 года.





1. трансформаторы целые. тем более его взрыв ничего сделать не может - даже перекрытия не повредятся!

2. власти видят то что близко - а то что далеко кажеться им большой фигней. cейчас когда поняли что погибло 60+ человек, когда поняли что ГЭС встала на годы начало доходить что дело серьезное.....

3. терракт на уровне водозаборных колодцев исключен. нужен ядерный заряд чтобы что-то сделать с плотиной.

вообще надо копать в причинах
а именно что делали на 2й турбине ?

к примеру если это был планвый пуск
(в начале я уже цитировал спеца который пишет про вибрацию как при пуске)
тут самое время вспомнить
http://www.sshges.rushydro.ru/branch/safety/tpir/5280.html
Цитата
Почти половина гидротурбин Саяно-Шушенской ГЭС имеет наработку более 90 тыс. час. За последние годы эксплуатации были выполнены значительные объёмы ремонтных, восстановительных и исследовательских работ, что позволило дать оценку надёжности и реально определить их эксплуатационный ресурс. После наработки в среднем 50 тыс. час объёмы ремонтных работ значительно увеличились. При наработке после ремонта 9-10 тыс. час приходиться выполнять массовые и регулярные работы по заварке трещин и кавитации на лопастях рабочих колёс. В среднем такой ремонт выполняется на 5-6 агрегатах в год, что связано с большими трудозатратами. Трудозатраты на эти работы составляют в среднем 9-10 тыс. час в год.

Наихудшее состояние имеет рабочее колесо гидротурбины № 10. На нём проведён наибольший объём ремонтно-восстановительных работ по ликвидации трещин, как на лопастях, так и на ободе. Совместным протоколом АО "ЛМЗ" и ОАО "СШГЭС" ещё в 1995 году было принято решение о замене рабочего колеса ГА № 10, где предполагается внедрить все известные к настоящему времени мероприятия по предотвращению трещинообразований. Проектирование нового рабочего колеса, включая модельные испытания, предполагается осуществить в 2007 году.


те предположим что 2ое колесо разрушилось и произошло заклинивание
что делает вода (поступающая по трубе диаметром 7.5метров и с давлением в 24 атмосферы) ? правильно - она прет наружу любыми способами
и если в процессе разрушения колеса произошло сужение протока воды
то получаем гидроудар которые легко выкидывает турбину из седла

далее идет разрушение перекрытий

потом на видео можно видеть как разрушаются 7й и 9й агрегаты - очень яркие вспышки вследствии КЗ

вполне возможно что офф расследование покажет что бригада такая-то производившая ремонт 2ого энегоблока нарушила то-то и то-то
/а мертвые как известно аппеляцию подать не могут..../


--------------------
Живы будем - Не помрем !
Пользователь в офлайнеКарточка пользователяОтправить личное сообщение
Вернуться в начало страницы
+Ответить с цитированием данного сообщения
SuperMax
сообщение 19.8.2009, 15:27
Сообщение #54


Администратор
*****

Группа: Root Admin
Сообщений: 6 346
Регистрация: 7.1.2006
Из: Красноярск
Пользователь №: 1



Обязательно к прочтению
http://tekhnik76.livejournal.com/162517.html

Спекуляция на крови
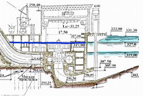
В ЖЖ полным ходом идет истерика по поводу оставшихся в живых сотрудников гидроэлектростанции. Стучат, мол, изнутри, а власти их спасать не хотят, властям мол киловатты дороже чем жизни. А всего то и надо, что опустить уровень Енисея до 319 посредством открытия холостых на Майнской ГЭС (посадив последнюю на ноль, да устроив потоп в нижнем бьефе). При этом ссылка у истериков идет почему то на анонимные источники. Оно и понятно - анонимус ответственности в любом случае не несет. Опуская всю эту убогую оппозиционно-каспаровскую истерику хочется разобраться спокойно. Итак, прежде всего надо прекратить спекуляции на тему "кто стучит, в бетон не поколотишь". Просто есть ведь дураки и с другой стороны, навроде Тарлита-Шевякова. Кроме бетона на любой станции есть масса трубопроводов, пожарных, масляных и водопроводов. В них можно стучать, и будет хорошо слышно. Так что выжившие не только могут быть, но могут и подавать о себе знать.
Теперь о предлагаемом снижении уровня. Даже опуская то, что понизить уровень быстро чревато очень нехорошими последствиями (вплоть до катастрофических, если попытаться уменьшить расход по водоводам СШ ГЭС) сомнительно что это вообще сильно поможет. Посмотрим на разрез по оси агрегата на СШ ГЭС
Прикрепленное изображение


Здесь хорошо видно как расположен машзал, помещение генератора, КРК (камера рабочего колеса) и нижние помещения. Это по сути колодец, если туда попадет вода, то деваться ей будет некуда. Судя по сообщению с места событий, от IPB Imagegreycygnet наиболее вероятная версия - разрушение крышки турбины. Не знаю насколько повреждены КРК и генераторное, но авария должна была выглядеть вот так:

Прикрепленное изображение

Вода своротила рабочее колесо, вышибла крышку турбины, верхнюю крестовину и вышла в машзал. А точнее вылетела, снеся целую секцию - стену с кровлей. И, продолжая идти, затопила машзал и хлынула в нижние помещения (см. стрелки). Ещё раз обращу внимание - вода поступала СВЕРХУ и в очень большом объеме. Вот этот снимок ход событий подтверждает:
Прикрепленное изображение

Что же мы имеем на текущий момент? Приблизительно вот это:

Прикрепленное изображение

Все помещения ниже уровня пола машзала затоплены водой. Могут ли там быть живые люди? Могут. Но поможет ли им падение уровня? Сомнительно.
Прикрепленное изображение

На снимке видно - вода стоит в помещении генератора. Это как сообщающиеся сосуды с нижним бьефом

Прикрепленное изображение

Синим там проведен нынешний предположительный уровень нижнего бьефа, где-то 326. Помещения со стороны верхнего бьефа (1) вполне могут быть оставаться затопленными и из за поступающей воды (синяя стрелка), но реально откачать воду возможно, так как 2ГА - единственный путь для поступления воды в помещения, и не думаю, что там очень большой расход, непосильный для нескольких мощных насосов. Тем более, что выходы в те помещения в площади не должны быть невероятно огромными, и их невозможно перекрыть с машзала, например мешками с песком. кроме того в помещения 1 можно пробиться сквозь перекрытия у трансформаторной площадки, наконец там должны быть перегрузочные люки (по любому). Вообщем способы есть.
Что до остальных ГА, то они пострадали, да, но крышки турбин то у них целые. Что до помещений со стороны нижнего бьефа (2)... Вообщем то же, что и с 1. А те помещения, что находятся ниже 319-ой отметки там только водолазы, или полная откачка.
Вот как бы и всё, но оговорюсь сразу, поскольку я не там, а у себя на работе, я не знаю истинного положения дел, я могу лишь предполагать, основываясь на собственном опыте.

Ну а что до истериков, то советовал бы им заткнуться. Там работают сотни спасателей, а их, не раз видевших смерть, вряд ли заставишь плюнуть на жизни людей, которых реально можно спасти, ради лишних киловатт, или денег. Это не такие люди.

От себя лично выражаю глубокое соболезнование родным и близким погибших.




--------------------
Живы будем - Не помрем !
Пользователь в офлайнеКарточка пользователяОтправить личное сообщение
Вернуться в начало страницы
+Ответить с цитированием данного сообщения
SuperMax
сообщение 19.8.2009, 15:30
Сообщение #55


Администратор
*****

Группа: Root Admin
Сообщений: 6 346
Регистрация: 7.1.2006
Из: Красноярск
Пользователь №: 1



Цитата
Сообщение от X-EG Народ, это мой первый и последний пост на форуме.
Не надо строить догадки и обвинять кого-либо, за Вас это сделает прокурор н накажут, "кого сочтут нужным".
Пожалуйста, не надо превращать блог Grey-я в продолжение этого форума.
Логи АСУТП видел, но мельком. Авария произошла в 8.13.29 во время ШТАТНОГО снижения мощности ГА2, при начале прохождения так называемой "зоны запрещенной работы". Агрегаты проходит эту зону КАЖДЫЙ РАЗ при сбросе нагрузки и прохождение этой зоны есть ШТАТНЫЙ режим. Зафиксировано сильное повышение вибрации. До последнего момента положение лопаток НА ГА2 были в допустимом отклонении. Последняя запись по лопаткам фиксирует их сильный разброс.
IMHO Повреждения именно 7-го и 9-го агрегатов можно объяснить тем, что до момента начала затопления генератора не было никаких ни технологических ни электрических предпосылок на их отключение, все параметры были в норме. Когда фронт волны достиг ГА7 произошло КЗ, переданное на Т4. К этому же трансформатору подключен ГА8, на нем сработали электрические защиты по отключению ГВ. С 9-м и 10-м аналогично.


--------------------
Живы будем - Не помрем !
Пользователь в офлайнеКарточка пользователяОтправить личное сообщение
Вернуться в начало страницы
+Ответить с цитированием данного сообщения
SuperMax
сообщение 23.8.2009, 17:14
Сообщение #56


Администратор
*****

Группа: Root Admin
Сообщений: 6 346
Регистрация: 7.1.2006
Из: Красноярск
Пользователь №: 1



http://www.kommersant.ru/doc-rss.aspx?DocsID=1225311

Цитата
— Что вам рассказать? — переспросил меня Олег Мякишев, невысокого роста усатый полнолицый человек.— Как мы драпали оттуда? Давайте, я расскажу. Я стоял наверху, услышал какой-то нарастающий шум, потом увидел, как поднимается, дыбится рифленое покрытие гидроагрегата. Потом видел, как из-под него поднимается ротор. Он вращался. Глаза в это не верили. Он поднялся метра на три. Полетели камни, куски арматуры, мы от них начали уворачиваться... Рифленка была где-то под крышей уже, да и саму крышу разнесло... Я прикинул: поднимается вода, 380 кубов в секунду, и — деру, в сторону десятого агрегата. Я думал, не успею, поднялся выше, остановился, посмотрел вниз — смотрю, как рушится все, вода прибывает, люди пытаются плыть... Подумал, что затворы надо закрывать срочно, вручную, чтобы остановить воду... Вручную, потому что напряжения-то нет, никакие защиты не сработали...

— Почему?

— Не было условий для срабатывания,— сказал подошедший довольно молодой человек, начальник смены машинного зала Дмитрий Мезенцев (он должен был принять вахту у начальника той самой смены).— Ничего не произошло, чтобы автоматика сама скинула затворы.

— А начальник смены? — спросил я.— Он...

— Его нашли сегодня,— сказал Дмитрий Мезенцев.— Он в будке на приемке смены был. Он и еще четверо. Сегодня достали. Один все-таки спасся, он на крышу будки успел выбраться. А Лалыка (начальник смены.— "Ъ") засосало в воронку девятого гидроагрегата. Нашли на 320-й отметке.

— Я когда увидел, что затворы надо вручную сбрасывать, начал подниматься на гребень плотины,— продолжал Олег Мякишев.— Бегу, а тут на меня из-за поворота, из-за трансформаторов волна идет в метр высотой. И я убежал от нее. Мы не знали, куда бежать. Рации отключились, напряжения нет...



--------------------
Живы будем - Не помрем !
Пользователь в офлайнеКарточка пользователяОтправить личное сообщение
Вернуться в начало страницы
+Ответить с цитированием данного сообщения
SuperMax
сообщение 23.8.2009, 19:14
Сообщение #57


Администратор
*****

Группа: Root Admin
Сообщений: 6 346
Регистрация: 7.1.2006
Из: Красноярск
Пользователь №: 1



в книжке Митрофанова..
Цитата
Повышенная кавитация и трещинообразоалние потребовали увеличить затраты на ремонты и изменили их периодичность. В настоящее время профилактические осмотры рабочих колес осуществляются 2 раза в гид (после 2.5 - 3.0 тыс. ч работы), а устранение кавитационных повреждений I раз в 2 года после 10 тыс. ч работы.
Одним из недостатков гидротурбин является наличие запрещенной заводом-изготовтелсм зоны. границы которой изменяются в зависимосги от напора (от 190 до 410 МВт при напоре 175 м нот 275 до 585 МВт при напоре 215 м. Постоянная эксплуатация турбин в этой зоне запрещена из-за повышенных вибраций, при изменениях мощности на гидроагрегатах рекомендовано проходить ее как можно быстрее. Это обстоятельство ограничивало участие гиpoдpeгaтoв Саяно-Шушенской ГЭС в регулировании частоты к мощности (АРЧМ).
Участие в АРЧМ технически было возможно только при подключении к групповому регулятору активной мощности (ГРАМ) гидроагрегатов, работающих в первой зоне от 0 до 190 МВт при напое 175м(от 0 до 275 МВт при напоре 215 м). При работе в этой зоне турбины имени низкий к.п.д и следовательно, неэкономично используются гидроресурсы. ....
После ввода к эксплуатацию нового цифрово группового регулятора активной и реактивной мощности разработки ООО "Промавтоматика" Санкт-Петербург участие гидроагрегатов в АРЧМ осуществляется без ограничений во всем требуемом ОДУ Сибири диапазоне.


--------------------
Живы будем - Не помрем !
Пользователь в офлайнеКарточка пользователяОтправить личное сообщение
Вернуться в начало страницы
+Ответить с цитированием данного сообщения
SuperMax
сообщение 23.8.2009, 19:17
Сообщение #58


Администратор
*****

Группа: Root Admin
Сообщений: 6 346
Регистрация: 7.1.2006
Из: Красноярск
Пользователь №: 1



http://www.gazeta.spb.ru/185474-0/ тут вот что говорят:
"Специальная комиссия, в состав которой входят лучшие специалисты из разных регионов страны, пытается установить причину трагедии. Руководство ГЭС пытается всем доказать, что всему виной стал заводской брак турбины, сделанной в Питере на заводе "Силовые машины".

Однако на питерском предприятии "Силовые машины" опровергли информацию о возможном производственном браке.

- Этого нет и быть не может, - рассказала LIFE.RU начальник управления службы информации ОАО "Силовые машины" Мария Алиева. - Наши специалисты - одни из лучших в мире. Турбина была полностью рабочей, в течение трех лет с момента установки наши инженеры регулярно проверяли ее работоспособность.

Турбину, на которой случился прорыв, на Саяно-Шушенскую ГЭС установили в 1979 году. Через три года гарантийные обязательства со стороны завода-изготовителя исчерпали себя, а продлевать обслуживание руководство ГЭС отказалось.

- Срок работы этой турбины - 30 лет, - объясняет Мария Алиева. - Ровно тридцать лет она и отработала. А дальше дала сбой. О том, что 30 лет - предельный срок службы этой турбины, руководство ГЭС прекрасно знало, но никаких мер не было принято.Наши специалисты за 15 лет ни разу не вызывались на ГЭС."


--------------------
Живы будем - Не помрем !
Пользователь в офлайнеКарточка пользователяОтправить личное сообщение
Вернуться в начало страницы
+Ответить с цитированием данного сообщения
SuperMax
сообщение 23.8.2009, 19:19
Сообщение #59


Администратор
*****

Группа: Root Admin
Сообщений: 6 346
Регистрация: 7.1.2006
Из: Красноярск
Пользователь №: 1



еще информация


Эскизы прикрепленных изображений
Прикрепленное изображение Прикрепленное изображение Прикрепленное изображение Прикрепленное изображение Прикрепленное изображение Прикрепленное изображение Прикрепленное изображение Прикрепленное изображение Прикрепленное изображение

--------------------
Живы будем - Не помрем !
Пользователь в офлайнеКарточка пользователяОтправить личное сообщение
Вернуться в начало страницы
+Ответить с цитированием данного сообщения
SuperMax
сообщение 23.8.2009, 19:20
Сообщение #60


Администратор
*****

Группа: Root Admin
Сообщений: 6 346
Регистрация: 7.1.2006
Из: Красноярск
Пользователь №: 1



идет разбор завалов


Эскизы прикрепленных изображений
Прикрепленное изображение Прикрепленное изображение Прикрепленное изображение Прикрепленное изображение Прикрепленное изображение Прикрепленное изображение Прикрепленное изображение Прикрепленное изображение Прикрепленное изображение Прикрепленное изображение Прикрепленное изображение

--------------------
Живы будем - Не помрем !
Пользователь в офлайнеКарточка пользователяОтправить личное сообщение
Вернуться в начало страницы
+Ответить с цитированием данного сообщения

4 Страницы V < 1 2 3 4 >
Ответить в эту темуОткрыть новую тему
2 чел. читают эту тему (гостей: 2, скрытых пользователей: 0)
Пользователей: 0

 



Текстовая версия Сейчас: 14.12.2025, 11:54